Családi ház 3D lézerszkennelése

Pontos épületfelmérés

A megszokottnál összetettebb felépítésű családi ház felmérésére kaptunk megbízást, ahol a meglévő tervdokumentáció és a valós állapot között jelentős eltérések voltak feltételezhetők. 

A cél az volt, hogy a tervezéshez megbízható, valós geometriai alapadat álljon rendelkezésre. A felmérés 3D lézerszkenneléssel készült, amely lehetővé tette a teljes épület pontos és gyors dokumentálását.

Projektadatok

Jelleg: Családi ház
Méret: 330 m² | Alagsor – földszint – tetőtér
Feladat: Teljes épületfelmérés kívül-belül
Technológia: 3D lézerszkennelés | Pontfelhő
Cél: Pontos alap a tervezéshez
Munkarészek: Lézerszkennelés | Pontfelhő | 3D modell | Tervrajzok | Látványképek

Kapcsolódó szolgáltatás

Általános épületfelmérés

Általános épületfelmérés

Meglévő épületek pontos 3D dokumentálása

Kihívások

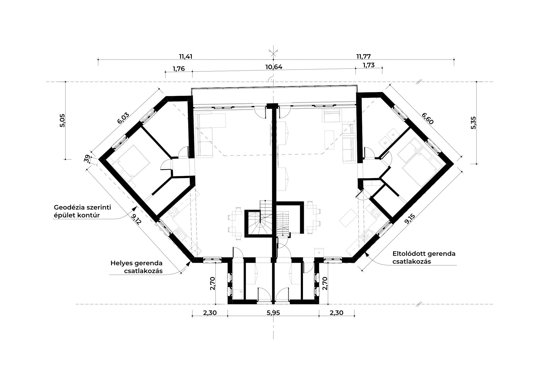
Az épület felépítése erősen tagolt és összetett volt. A számtalan szögtörés és a terep lejtése is nehezítette a feladatot. Az alagsor és a földszint között nem volt közvetlen nyílás ahol a szerkezeti vastagság egyszerűen mérhető lett volna. Akadtak olyan, nyílás nélküli belső falak is amiknek a vastagsága nehezen lett volna mérhető. 

Hagyományos módszerekkel nagyon sok kézi mérést kellett volna végezni, a szögek és a nem párhuzamos falak pontosítása végett. 

 Valószínű a szerkesztés közben többször is vissza kellett volna térni az ellenőrzésekhez és hiányzó mérésekhez.

Lézerszkennelés ikon

A megoldás

A teljes épületetfelmérés, kívül-belül lézerszkenner segítségével történt. Az 55 álláspont összeillesztésével hajszál pontos pontfelhő készült. Gyönyörűen láthatóvá váltak a szerkezeti vastagságok, a szögtörések, és a párhuzamok és szimmetriai eltérések is. 

 Fény derült az épület évtizedekkel korábbi kitűzésének szakszerűtlenségére. Több helyen 30-60 cm geometriai eltérések vannak az ideális szimmetrikustól és párhuzamostól. Egyes szerkezeti csatlakozások jelentősen elcsúsztak. 

A felmérés gyorsan, pontosan és minden részletre kiterjedően valósult meg. A tervezés során pontos adatokkal dolgozhattunk tovább, nem voltak kellemetlen meglepetések a méretpontosság tekintetében.

  • Az alaprajzon jól láthatóak az ideálistól való eltérések

  • Az alaprajzon jól láthatóak az ideálistól való eltérések

Eredmény

  • A teljes épület ellenőrizhető, pontos digitális lenyomata készült el. 
  • A 3D épületmodell gyorsabban és pontosabban készült el mint hagyományos mérésekkel. 
  • A tervezés során nem volt szükség pontatlan mérésből származó utólagos javításokra, módosításokra. 
  • Elkerülhetőek lettek a kivitelezés közbeni meglepetések. 
  • Így a terv nem csak "papíron elmegy", hanem a valóságot tükrözi. 
  • Kiválóbb munka rövidebb idő alatt.

Mikor hasznos?

  • Kisebb, családi ház méretű projekteknél is megéri a lézerszkennelés.
  • Pontatlan vagy hiányos, régi tervdokumentáció esetén.
  • Összetett nehezen mérhető szerkezetek esetén.
  • Ferde szögtöréseknél.
  • Amikor nem szeretnénk hibák miatt nyereséget veszíteni.

A 3D lézerszkennelésnek köszönhetően a tervezés valós, mérhető geometriai adatokra támaszkodhatott, nem feltételezésekre. 

A pontfelhő egyértelműen megmutatta a meglévő szerkezet eltéréseit, így a tervezési folyamat során nem volt szükség utólagos korrekciókra vagy helyszíni újramérésekre.

A projekt tanulsága: a lézerszkennelés nem plusz lépés, hanem a biztonságos tervezés feltétele.

Gyors pontos 3D - lezeresfelmeres.hu

Épületfelmérés - Lézerszkennelés - Scan to BIM

🍪

Ez az oldal sütiket használ a személyre szabott böngészési élmény és a biztonság miatt. Az oldal felkeresésével és további böngészésével beleegyezel azok használatába.

OK